An EXCEPTIONAL example of a SUBSTANTIAL PERIOD RESIDENCE, this stunning home on BLANDFORD ROAD seamlessly combines TIMELESS CHARACTER with refined contemporary styling, extending to over 2,200 sq. ft. of beautifully appointed and versatile living space. Rich in CHARM AND ELEGANCE THROUGHOUT, it represents a rare opportunity to acquire a distinguished home in one of ST ALBANS’ MOST DESIRABLE LOCATIONS.
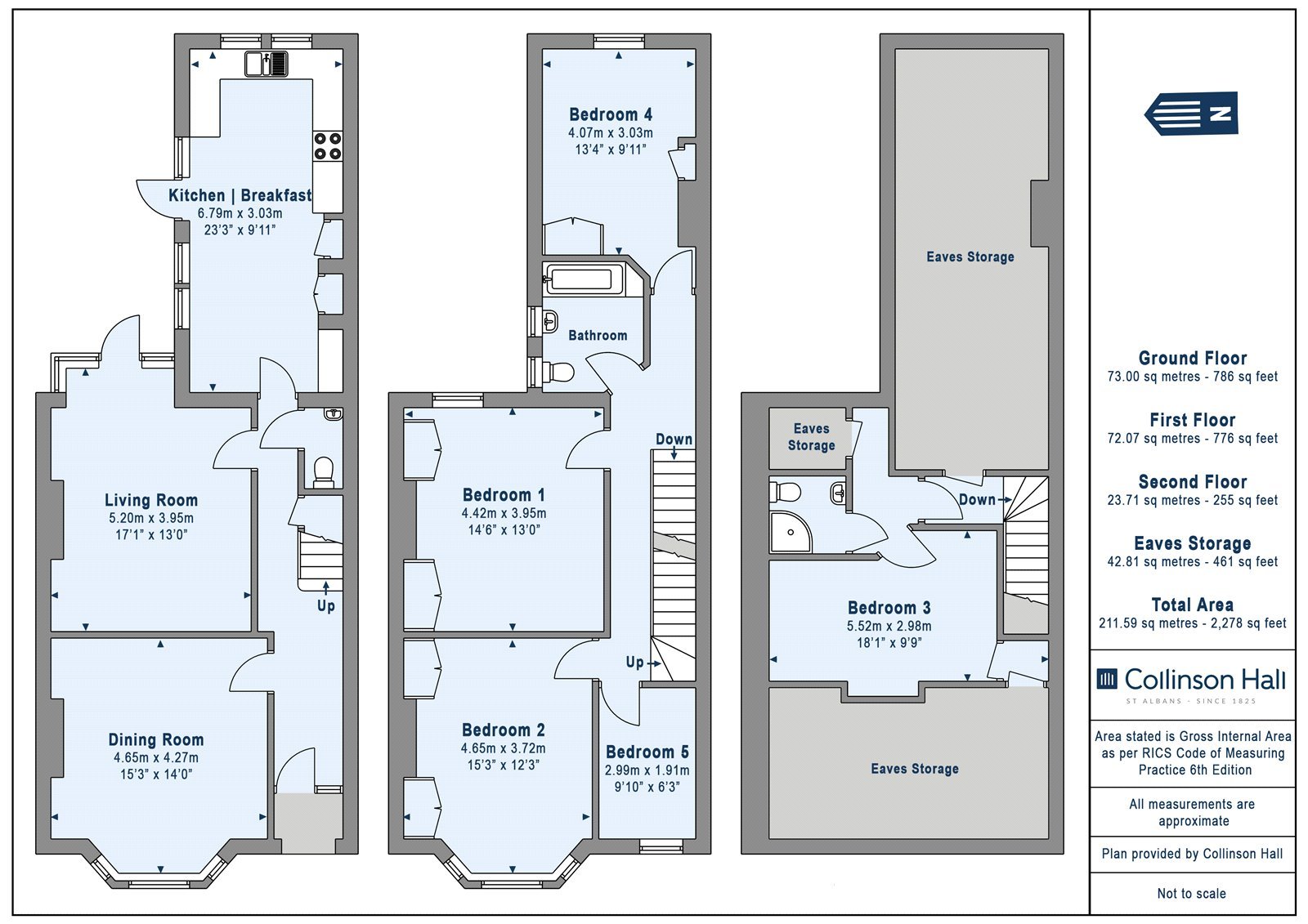
From the moment you step into the welcoming, tiled hallway, the home’s character is immediately apparent; with stained glass windows, high ceilings, ornate cornicing, and an impressive staircase setting the tone for the accommodation beyond. The ground floor has been thoughtfully arranged to create a seamless flow between the living spaces. The bay-fronted dining room provides a wonderful setting for formal entertaining, while the spacious lounge, bathed in natural light from the stunning stained glass box bay window, offers the perfect retreat to relax and unwind. French doors open onto a magnificent landscaped garden, designed by a Chelsea Flower Show award-winning gardener, bursting with texture, colour, and year-round interest — a true extension of the living space.
The kitchen/breakfast room is both stylish and practical, featuring a mix of bespoke fitted units and classic period detailing, along with generous space for casual dining. It’s a wonderful area for family gatherings and informal entertaining alike.
The first floor hosts three generous double bedrooms and a well-proportioned single bedroom, ideal as a study or nursery. A beautifully presented family bathroom completes this floor. On the top floor, the converted attic provides a further spacious double bedroom, accompanied by a modern shower room and extensive eaves storage.
Blandford Road is a highly desirable residential street in the ever-popular Fleetville area of St Albans, renowned for its vibrant community atmosphere, excellent local schools, and array of independent shops, cafés, and restaurants. The property is within easy reach of Clarence Park, providing beautiful open green space, and just a short stroll from St Albans City Station, offering a fast and convenient commute to London.
This exceptional property combines grandeur, comfort, and convenience in equal measure. With its wealth of period features, beautifully landscaped gardens, and prime location, it offers the perfect opportunity to own a truly special home in the heart of St Albans.
EPC Rating: D 57
Council Tax Band: F
Thinking of selling/letting?
Find out how much is your property worth with our free property valuation